Page 79 - การระบายน้ำ
P. 79

6-3

                                  ่
                                  ี
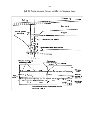
                              รูปท 6.2 Typical subgrade drainage installtion and subgrade layout
   74   75   76   77   78   79   80   81   82   83   84