Page 105 - การประมาณการก่อสร้าง
P. 105

3
                                                           -
                                                            46
                                                         3-46




















































































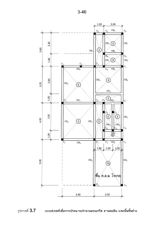
              รูปภาพที่ 3.7       แบบสเกตซ์เพื่อการประมาณจ านวนคอนกรีต คานคอดิน และพื้นชั้นล่าง
   100   101   102   103   104   105   106   107   108   109   110